HomeProjektseitenSanierung und Teilwiederaufbau eines denkmalgeschützten Gewerbebaus nach Brandfall, Biel
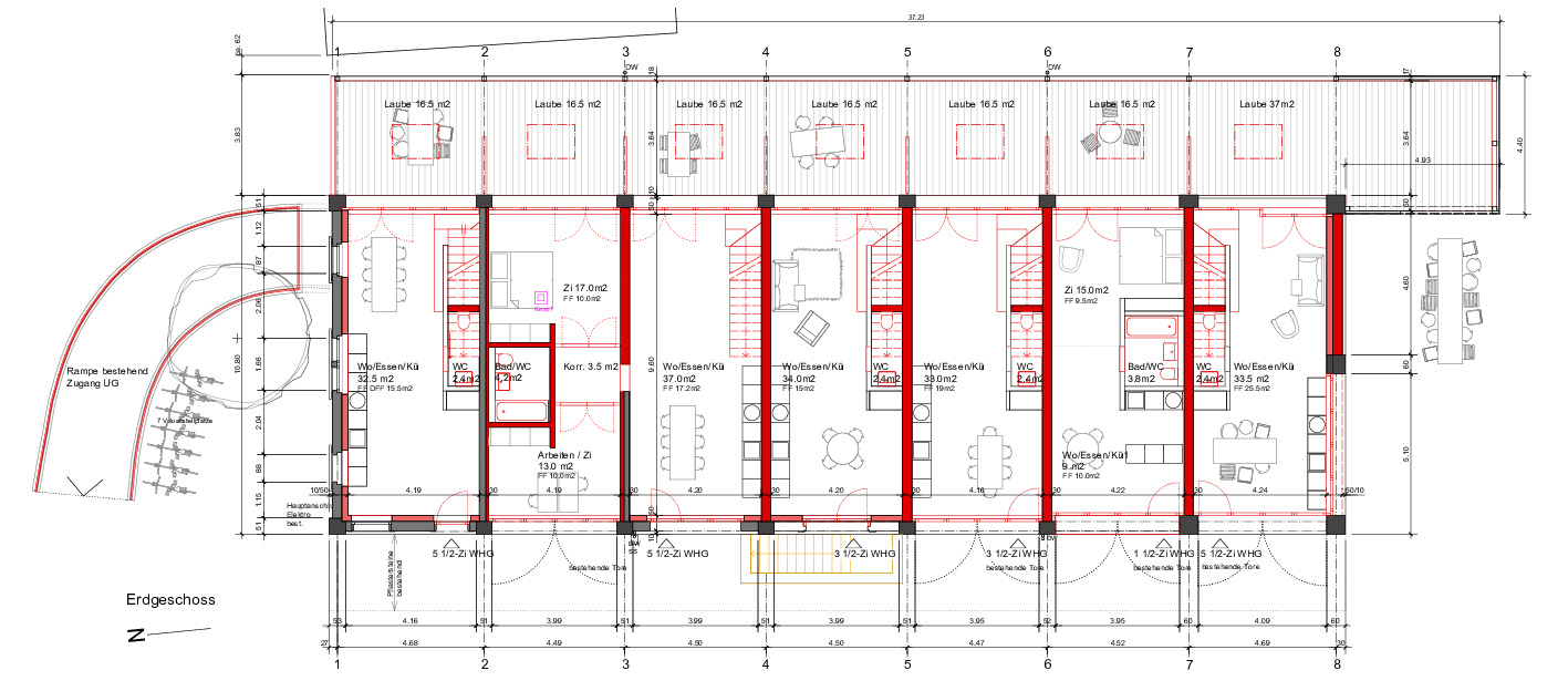
Sanierung und Teilwiederaufbau eines denkmalgeschützten Gewerbebaus nach Brandfall, Biel
Planung und gestalterische Leitung: 2023-2025
Bauherrschaft: privat
Pläne und Fotografie: werk.ARCHITEKTEN
Cookies ermöglichen eine bestmögliche Bereitstellung unserer Dienste. Durch die Nutzung dieser Website erklären Sie sich damit einverstanden, dass wir Cookies verwenden. Unsere Datenschutzerklärung finden Sie hier.
Close
Cookies ermöglichen eine bestmögliche Bereitstellung unserer Dienste. Informationen zu den Arten von Cookies, die auf dieser Website verwendet werden, finden Sie in unserer Datenschutzerklärung. Bitte aktivieren Sie das Kontrollkästchen unten, um der Verwendung von Cookies zuzustimmen oder deren Einsatz abzulehnen.